Description

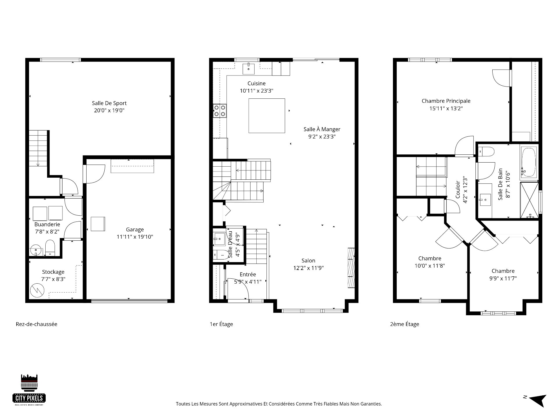
Superbe jumelé clé en main situé à Auteuil, construit en 2013, offrant des espaces de vie lumineux, accueillants et bien aménagés. La propriété comprend trois chambres à coucher, dont une spacieuse chambre principale avec walk-in. Le rez-de-chaussée propose une aire ouverte avec un grand salon, une salle à manger et une cuisine fonctionnelle, idéale pour la vie quotidienne et recevoir. Le sous-sol entièrement aménagé offre un espace polyvalent pour une salle familiale, un bureau ou une salle de jeux. Profitez d'une cour paysagée, d'un garage intégré et d'un emplacement de choix près des écoles, parcs et transports en commun.

**VISITE LIBRE DIMANCHE LE 26 AVRIL, DE 14H00--16H00**

Superbe jumelé clé en main situé dans le secteur recherché d'Auteuil, construit en 2013 et soigneusement entretenu. Cette propriété offre des espaces de vie lumineux, chaleureux et bien pensés, parfaits pour une famille ou des acheteurs en quête de confort et de fonctionnalité.

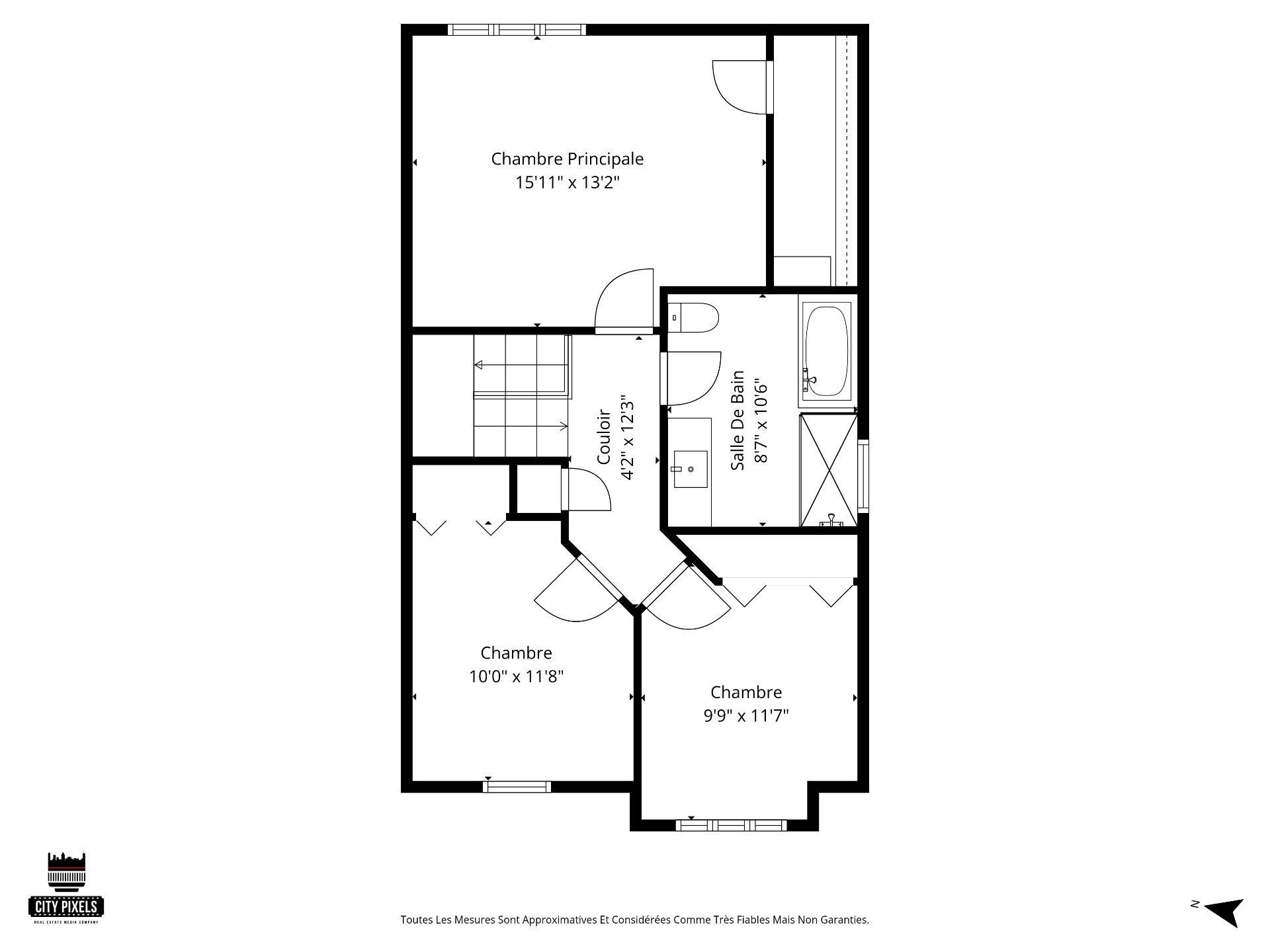
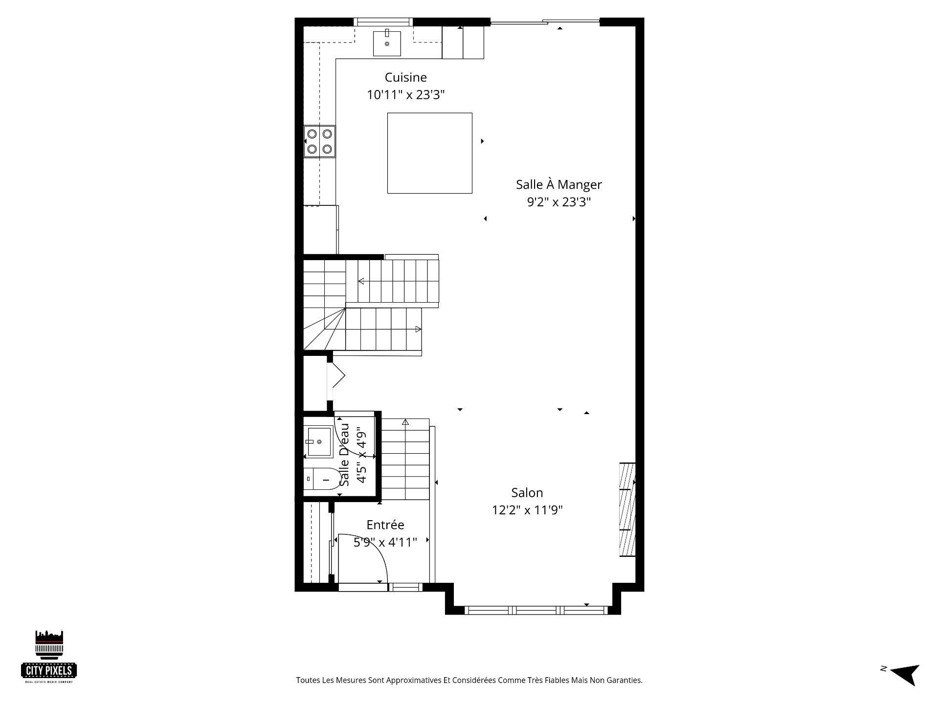
Elle comprend trois chambres à coucher de bonnes dimensions, dont une spacieuse chambre principale avec walk-in offrant un excellent rangement. Le rez-de-chaussée à aire ouverte se démarque par sa belle luminosité et sa fluidité, proposant un salon accueillant, une salle à manger conviviale et une cuisine fonctionnelle avec beaucoup d'espace, idéale pour la vie quotidienne et pour recevoir.

Le sous-sol entièrement aménagé ajoute une grande polyvalence, parfait pour une salle familiale, un bureau à domicile, un gym ou une salle de jeux, selon vos besoins.

À l'extérieur, profitez d'une cour paysagée, intime et facile d'entretien, idéale pour relaxer ou recevoir durant la belle saison. Un garage intégré ajoute commodité et espace de rangement supplémentaire.

Idéalement située, cette propriété se trouve à proximité de tous les services essentiels, incluant écoles, parcs, garderies, commerces et transports en commun, facilitant ainsi votre quotidien.

Une excellente opportunité d'acquérir une propriété clé en main dans un quartier paisible et familial de Laval.

Inclus : Luminaires, hotte de cuisine, lave-vaisselle, frigo à vin, stores, thermopompe (3 têtes), tempo, système de filtration d'eau.

Exclus : Réfrigérateur, cuisinière, rideaux et tringles, foyer électrique.

Emplacement


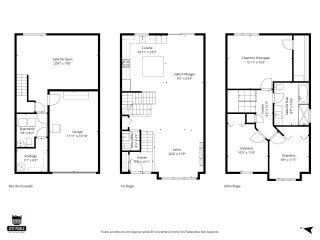
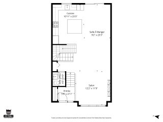
Détails des pièces

Chambre Dimensions Niveau Revêtement
Hall d'entrée 5.9 x 4.11 P Rez-de-chaussée Céramique
Salon 12.2 x 11.9 P Rez-de-chaussée Bois
Salle à manger 9.2 x 23.3 P Rez-de-chaussée Bois
Cuisine 10.11 x 23.3 P Rez-de-chaussée Céramique
Salle d'eau 4.5 x 4.9 P Rez-de-chaussée Céramique
Chambre à coucher principale 15.11 x 13.2 P 2ième étage Bois
Chambre à coucher 10.0 x 11.8 P 2ième étage Bois
Chambre à coucher 9.9 x 11.7 P 2ième étage Bois
Salle de bains 8.7 x 10.6 P 2ième étage Céramique
Salle familiale 20.0 x 19.0 P Sous-sol Plancher flottant
Salle d'eau 7.8 x 8.2 P Sous-sol Céramique

Caractéristiques

Sous-sol 6 pieds et plus, Totalement aménagé
Allée Asphalte, Pavé uni
Stationnement Au garage, Extérieur
Toiture Bardeaux d'asphalte
Fondation Béton coulé
Revêtements Brique
Garage Chauffé, Intégré, Simple largeur
Équipement disponible Climatiseur mural, Échangeur d'air, Installation aspirateur central, Porte de garage électrique, Système d'alarme, Thermopompe murale
Aménagement du terrain Clôturé, Paysager
Services disponibles Détecteur d'incendie
Salle de bains/salle d'eau Douche indépendante
Proximité École primaire, École secondaire, Garderie/CPE, Hôpital, Parc-espace vert, Piste cyclable, Transport en commun
Énergie pour le chauffage Électricité
Type de fenêtre Manivelle
Armoires Mélamine
Système d'égouts Municipal
Approvisionnement en eau Municipalité
Mode de chauffage Plinthes électriques
Fenêtres PVC
Zonage Résidentiel

Partager

     

Nom

Téléphone

Courriel

Message

J'accepte d'être contacté par Rachid Ayouch par appel, email et SMS. Pour vous désinscrire, vous pouvez répondre 'stop' à tout moment ou cliquer sur le lien de désinscription dans les emails. Des frais de message et de données peuvent s’appliquer. Politique de confidentialite et Condition de services.

Cette inscription est présentée en collaboration avec RE/MAX DYNASTIE